2026年04月16日更新の物件一覧
-
◆2路線利用でき大変便利◎◆閑静な住宅街 4/16
-
◆南海本線「石津川駅」徒歩約7分◆阪堺電気軌道「石津北駅」徒歩約2分 4/16
中古マンション堺市西区浜寺石津町中2丁 浜寺北スカイハイツ980万円- 間取り
- 3LDK
- 専有面積
- 66m²
- 構造
- RC
- 築年数
- 築46年
- 所在階
- 2階/6階建
- 南海電鉄本線石津川駅徒歩7分
-
◆南海本線羽衣駅徒歩11分◆南西バルコニー◆オークワ約600m◆ウエルシア約500m◆セブンイレブン約250m◆高石病院約500m◆羽衣保育園約320m 4/16
中古マンション高石市羽衣4丁目 レジデンス羽衣ガーデンスクエア1,380万円- 間取り
- 3LDK
- 専有面積
- 71.82m²
- 構造
- RC
- 築年数
- 築27年
- 所在階
- 1階/11階建
- 南海電鉄高師浜線伽羅橋駅徒歩4分
-
◆約30坪角地◆小学校、中学校近く◆国道26号も近く交通の便も○ 4/16
-
新着物件 画像5枚以上 2000万円台 3LDK以上 空室 駅徒歩10分以内 4/16
中古マンション堺市西区上野芝町3丁 ライオンズマンション上野芝ガーデンシティ2,698万円- 間取り
- 3LDK
- 専有面積
- 63m²
- 構造
- RC
- 築年数
- 築28年
- 所在階
- 8階/9階建
- 阪和線上野芝駅徒歩6分
-
◆令和8年3月高機能エコキュート新調(※給湯配管交換)◆開放感あふれる南西角部屋◆ペット飼育可(※規約による制限有)◆室内大変綺麗にお使いです! 4/16
-
3LDK以上 新着物件 空室 2000万円台 4/16
中古マンション堺市北区百舌鳥本町3丁 ヴィルメゾン上野芝2,990万円- 間取り
- 3LDK
- 専有面積
- 72m²
- 構造
- RC
- 築年数
- 築30年
- 所在階
- 5階/11階建
- 阪和線上野芝駅徒歩15分
-
カースペース駐車場 4/16
-
◆土地面積約117坪◆小学校近く◆近隣大型商業施設あり 4/16
-
カースペース駐車場 4/16
-
◆光明池駅徒歩1分◆自走式駐車場1台無料◆キッズルーム、パーティールーム有◆ダイエー、コムボックス、セブンイレブンも近い◆南東向き◆専有面積:82.17平米 4/16
中古マンション堺市南区新檜尾台2丁 グレイスランドマーク堺・光明池3,380万円- 間取り
- 3LDK
- 専有面積
- 82.17m²
- 構造
- SRC
- 築年数
- 築25年
- 所在階
- 6階/15階建
- 泉北線光明池駅徒歩1分
-
1台駐車可能 4/16
-
カースペース駐車場 4/16
-
カースペース駐車場 4/16
-
1台駐車可能 4/16
-
カースペース駐車場 4/16
-
カースペース駐車場 4/16
-
カースペース駐車場 4/16
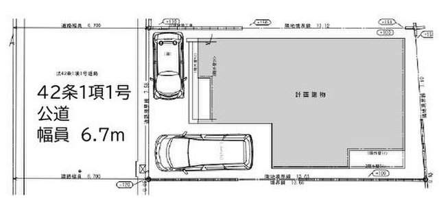
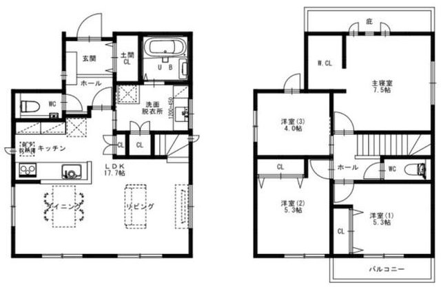
新築一戸建て堺市西区浜寺諏訪森町東3丁4,398万円- 間取り
- 4LDK
- 土地面積
- 166.74m²
- 建物面積
- 100.19m²
- 構造
- 木造
- 築年数
- 新築
- 南海電鉄本線諏訪ノ森駅徒歩7分
-
カースペース駐車場 4/16
-
◆ロードサイド物件◆土地約74.58坪◆お好きなハウスメーカー・工務店等で建築可能です! 4/16
20件見つかりました!




















































































































