物件一覧
-
◆JR阪和線上野芝駅まで約徒歩2分◆ペット飼育可◆スーパーまで500m以内 3/8
中古マンション堺市西区上野芝町2丁 ライオンズマンション上野芝駅前2,750万円- 間取り
- 3LDK
- 専有面積
- 67.8m²
- 構造
- RC
- 築年数
- 築25年
- 所在階
- 11階/12階建
- 阪和線上野芝駅徒歩2分
-
80m²以上 容積率100% 建蔽率40% 2駅利用可 新着物件 3/7
-
2000万円台 更新物件 駅徒歩5分以内 画像5枚以上 SRC構造 3LDK以上 空室 ペット可 2/15
中古マンション堺市南区鴨谷台2丁 ラフィーナ堺・光明池2,798万円- 間取り
- 3LDK
- 専有面積
- 64.34m²
- 構造
- SRC
- 築年数
- 築21年
- 所在階
- 9階/14階建
- 泉北線光明池駅徒歩3分
-
建蔽率40% 更地 更新物件 80m²以上 容積率80% 2/22
-
◆2023年5月外壁塗装済み◆閑静な開発分譲地内◆室内大変きれいにお使いです◆周辺にスーパー・コンビニがあり大変便利◎ カースペース駐車場 3/8
-
2000万円台 80m²以上 新着物件 画像5枚以上 ペット可 空室 3LDK以上 3/7
中古マンション堺市南区城山台1丁 堺・泉北光明池城山公園シンシア2,898万円- 間取り
- 4LDK
- 専有面積
- 105.63m²
- 構造
- RC
- 築年数
- 築21年
- 所在階
- 9階/15階建
- 泉北線光明池駅徒歩14分
-
2000万円台 駅徒歩10分以内 画像5枚以上 更新物件 空室 80m²以上 3LDK以上 2/22
中古マンション堺市北区東上野芝町2丁 エンゼルハイム上野芝2,899万円- 間取り
- 4LDK
- 専有面積
- 94.41m²
- 構造
- RC
- 築年数
- 築35年
- 所在階
- 4階/10階建
- 阪和線上野芝駅徒歩9分
-
◆令和8年3月高機能エコキュート新調(※給湯配管交換)◆開放感あふれる南西角部屋◆ペット飼育可(※規約による制限有)◆室内大変綺麗にお使いです! 3/8
-
2000万円台 更新物件 空室 3LDK以上 2/15
中古マンション堺市北区百舌鳥本町3丁 ヴィルメゾン上野芝2,990万円- 間取り
- 3LDK
- 専有面積
- 72m²
- 構造
- RC
- 築年数
- 築30年
- 所在階
- 5階/11階建
- 阪和線上野芝駅徒歩15分
-
空室 画像5枚以上 更新物件 ペット可 2000万円台 3LDK以上 駅徒歩10分以内 2/28
中古マンション堺市西区鳳南町3丁 アパガーデンスプリングス鳳2,998万円- 間取り
- 3LDK
- 専有面積
- 71.52m²
- 構造
- RC
- 築年数
- 築26年
- 所在階
- 10階/11階建
- 阪和線鳳駅徒歩10分
-
カースペース駐車場 3/7
-
駅徒歩5分以内 空室 画像5枚以上 SRC構造 新着物件 2000万円台 3LDK以上 3/7
中古マンション堺市中区深井清水町 ユニライフ泉北深井駅前2,998万円- 間取り
- 3LDK
- 専有面積
- 77.02m²
- 構造
- SRC
- 築年数
- 築27年
- 所在階
- 4階/14階建
- 泉北線深井駅徒歩2分
-
カースペース駐車場 2/22
-
カースペース駐車場 3/8
-
カースペース駐車場 2/22
-
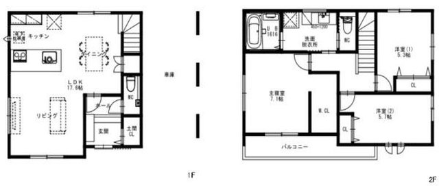
◆ビルトインガレージ◆南東側道路◆しっかり収納有り◆ウォークインクローゼット◆LDK18帖◆日当り通風良好 1台駐車可能 2/22
-
SRC構造 11階眺望 2駅利用可 駅徒歩5分以内 3LDK以上 空室 新着物件 3/7
中古マンション堺市堺区大町西3丁 ユニライフ堺・宿院3,190万円- 間取り
- 3LDK
- 専有面積
- 68.6m²
- 構造
- SRC
- 築年数
- 築31年
- 所在階
- 11階/14階建
- 南海電鉄本線堺駅徒歩5分
-
カースペース駐車場 2/22
-
カースペース駐車場 3/9
-
◆土地面積約117坪◆小学校近く◆近隣大型商業施設あり 3/8
-
値下げ物件 空室 画像5枚以上 ペット可 3LDK以上 更新物件 駅徒歩10分以内 2/15
中古マンション堺市南区三原台3丁 ソフィア泉ケ丘パークヴェール3,298万円- 間取り
- 3LDK
- 専有面積
- 79.61m²
- 構造
- RC
- 築年数
- 築22年
- 所在階
- 2階/8階建
- 泉北線泉ケ丘駅徒歩10分
-
3LDK以上 更新物件 リノベート ペット可 画像5枚以上 空室 2/21
中古マンション堺市南区三原台2丁 ヴューイスト泉ケ丘3,298万円- 間取り
- 3LDK
- 専有面積
- 74.34m²
- 構造
- RC
- 築年数
- 築19年
- 所在階
- 4階/15階建
- 泉北線泉ケ丘駅徒歩12分
-
3LDK以上 空室 駅徒歩10分以内 画像5枚以上 ペット可 新着物件 3/7
中古マンション堺市南区若松台1丁 ロイヤルアーク泉ケ丘3,298万円- 間取り
- 3LDK
- 専有面積
- 77.92m²
- 構造
- RC
- 築年数
- 築24年
- 所在階
- 6階/14階建
- 泉北線泉ケ丘駅徒歩10分
-
カースペース駐車場 3/8
-
カースペース駐車場 2/15
-
◆光明池駅徒歩1分◆自走式駐車場1台無料◆キッズルーム、パーティールーム有◆ダイエー、コムボックス、セブンイレブンも近い◆南東向き◆専有面積:82.17平米 2/22
中古マンション堺市南区新檜尾台2丁 グレイスランドマーク堺・光明池3,380万円- 間取り
- 3LDK
- 専有面積
- 82.17m²
- 構造
- SRC
- 築年数
- 築25年
- 所在階
- 6階/15階建
- 泉北線光明池駅徒歩1分
-
駅徒歩5分以内 更新物件 2駅利用可 11階眺望 3LDK以上 画像5枚以上 値下げ物件 空室 ペット可 10/5
中古マンション堺市堺区浅香山町3丁 サンメゾン堺浅香駅前3,398万円- 間取り
- 3LDK
- 専有面積
- 64.22m²
- 構造
- RC
- 築年数
- 築6年
- 所在階
- 11階/14階建
- 阪和線浅香駅徒歩3分
-
カースペース駐車場 3/7
-
カースペース駐車場 3/8
-
カースペース駐車場 2/15
132件見つかりました!





































































































































































































































































































































