2025年11月16日更新の物件一覧
-
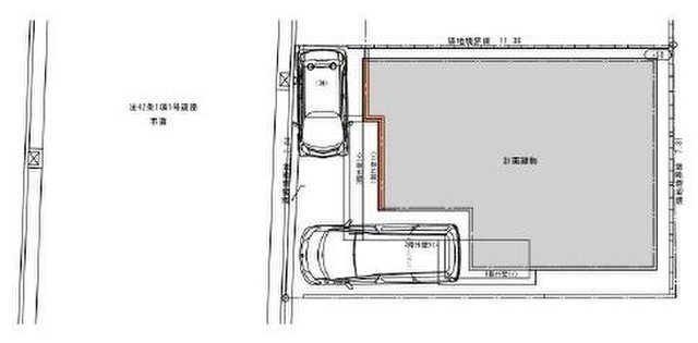
◇近隣商業地域◇建築条件なし◇前面道路広々◇ 11/16
-
◆阪和線 鳳駅 徒歩約15分・阪和線 富木駅 徒歩約6分◆建築条件無し◆お好きなハウスメーカー・工務店等で建築可能です! 11/16
-
更新物件 3LDK以上 ペット可 2000万円台 駅徒歩10分以内 画像5枚以上 空室 11/16
中古マンション堺市西区鳳南町3丁 アパガーデンスプリングス鳳2,998万円- 間取り
- 3LDK
- 専有面積
- 71.52m²
- 構造
- RC
- 築年数
- 築26年
- 所在階
- 10階/11階建
- 阪和線鳳駅徒歩10分
-
カースペース駐車場 11/16
4件見つかりました!




































