大阪府堺市中区福田 新築一戸建て 3,680万円(南海電鉄高野線北野田駅バス12分[金山]停歩5分)の物件情報
新築一戸建て大阪府堺市中区福田
- 価格
- 3,680万円
- 面積
- 土地:101.53m² 建物:105.86m²
- 間取り
- 4LDK
- 築年数
- 新築
- 構造
- 木造
- 階数
- 2階建て
- アクセス1
- 南海電鉄高野線北野田駅バス12分[金山]停歩5分
- アクセス2
- 南海電鉄高野線初芝駅徒歩36分[玄関]
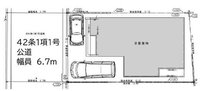
カースペース駐車場
- 新着物件
- 3LDK以上
- 80m²以上
- 2駅利用可
- 木造住宅
- 駐車場有
- 2階建て
- 建蔽率60%
- 容積率200%
- 一方接道
- 公道に面してる
- 道路幅6.7m
- 第一種住居
物件概要
| 価格(税込) | 3,680 万円 | ||
|---|---|---|---|
| 所在地 | 大阪府堺市中区福田 中区 福田 新築戸建 |
||
| アクセス | 南海電鉄高野線北野田駅バス12分[金山]停歩5分 | ||
| アクセス2 | 南海電鉄高野線初芝駅徒歩36分[玄関] | ||
| アクセス3 | - | ||
| 間取り | 4LDK | ||
| 建物構造 | 木造 | ||
| 面積(平米) | 土地:101.53m² 建物:105.86m² | ||
| 築年数 | 新築 | ||
| 学区情報 | 幼稚園区: 小学校区:福田小学校 中学校区:泉ヶ丘東中学校 |
||
| 階数 | 2階建て | ||
| 駐車場 | 有 | ||
| 建物現況 | 新築 | ||
| 設備 | 設計住宅性能評価有/建設住宅性能評価書有(新築時)/長期優良住宅認定通知書有/耐震構造/建築確認完了検査済証有/平坦地/前道6m以上/2階建/日当り良好/LDK広さ18帖以上/電気/上水道公営/汚水下水道/都市ガス/室内物干し/フローリング/全居室フローリング/クッションフロア/2台駐車可能/収納スペース/クローゼット/シューズインクローゼット/床下収納/システムキッチン/ガスコンロ/コンロ口数三口/グリル/食器洗乾燥機/独立洗面台/シャンプードレッサー/オートバス/追い焚き/シャワー/トイレ2ヶ所/温水洗浄便座/バルコニー有/ワイドバルコニー/バルコニー・屋上に水栓あり/省エネルギー対策/フラット35・S適合証明書有/TVインターホン/周辺交通量少なめ/スーパー徒歩10分以内/小学校徒歩10分以内 | ||
| 周辺施設 | - | ||
| 接道状況 |
一方 (西 6.7m 公道) - |
||
|---|---|---|---|
| 都市計画 | 市街化区域 | ||
| 建蔽/容積率 | 建ぺい率1:60% 容積率1:200% | ||
| セットバック | - | ||
| 地代 | - | ||
| 借地期間 | - | ||
| 引渡時期 | 相談 | ||
| 用途地域 | 用途地域1:第一種住居 | ||
| 取引態様 | 媒介 | ||
| 土地権利 | 所有権 | ||
| 借地条件 | - | ||
| 電話番号 | 072-281-0701 | ||
| 物件番号 | c9059 | ||
| 物件更新日 | 2026-04-05 | ||
| 備考 | 建築確認番号:第BVJ-ENG-10-1325号 | ||
物件周辺施設
※Google Mapに登録された場所情報で計算された距離のため、あくまで目安です。ご了承ください。
スーパー
- 見つかりませんでした
コンビニ
- 見つかりませんでした
レストラン
- 見つかりませんでした
カフェ
- 見つかりませんでした
公園
- 見つかりませんでした
学校
- 見つかりませんでした
警察
- 見つかりませんでした
郵便局
- 見つかりませんでした
図書館
- 見つかりませんでした
薬局
- 見つかりませんでした
病院
- 見つかりませんでした
歯科医
- 見つかりませんでした
獣医
- 見つかりませんでした
レンタルビデオ
- 見つかりませんでした
クリーニング
- 見つかりませんでした
GS
- 見つかりませんでした
ローンシミュレーション
-
お借入条件を入力してください 借入希望金額 ご返済期間 利率(実質年率) 万円 年 % -
毎月支払金額 - 円